Обычный режим просмотра
Навигация по разделу

Изъятие земельных участков для муниципальных нужд
Сообщение о планируемом изъятии земельного участка для муниципальных нужд по адресу: г. Архангельск, ул. Пирсовая, 66

Сообщение о планируемом изъятии земельного участка для муниципальных нужд по адресу: г. Архангельск, ул.Пирсовая, д.66

1. Цель изъятия земельного участка для муниципальных нужд – изъятие земельного участка в связи с признанием многоквартирного жилого дома по ул.Пирсовой, д.66, аварийным и подлежащим сносу.
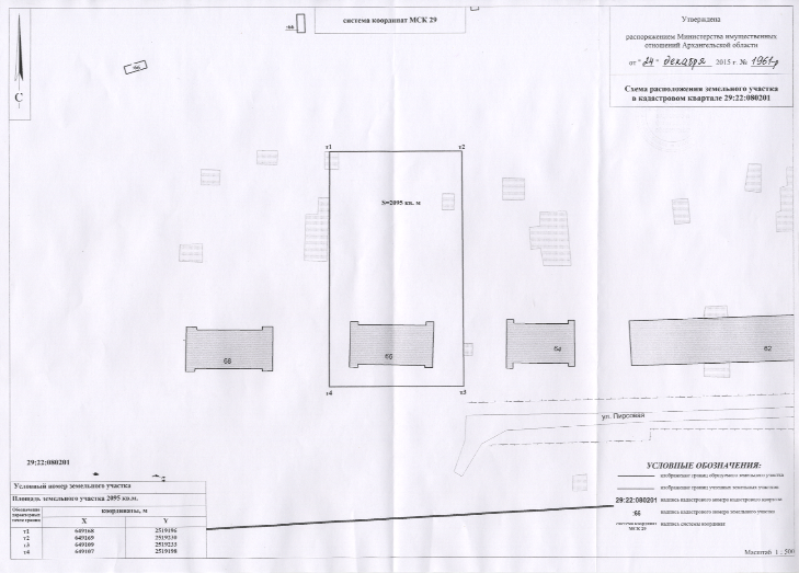
2. Адрес месторасположения земельного участка: г. Архангельск, ул.Пирсовая, д.66. Данный земельный участок расположен в кадастровом квартале 29:22:080201. Утвержденная схема расположения земельного участка:

На данном земельном участке расположены следующие объекты недвижимости:

- ул.Пирсовая, д.66, квартира №1, кадастровый номер: 29:22:080201:84;

- ул.Пирсовая, д.66, квартира №3, кадастровый номер: 29:22:080201:81.

3. Получить информацию о предполагаемом изъятии земельного участка, поименованного в п. 1 настоящего сообщения, и расположенных на нем объектов недвижимого имущества для муниципальных нужд, а также подать заявления об учете прав на земельный участок и иные объекты недвижимого имущества, заинтересованные лица могут по адресу: г. Архангельск, площадь Ленина, д. 5, кабинет 518а, тел. 607-271. Заявление на подачу информации может быть подано заинтересованными лицами в течение 60 дней с момента опубликования настоящего сообщения.

4. Официальный сайт Администрации МО «Город Архангельск», где размещено настоящее сообщение - www.arhcity.ru. Так же настоящее сообщение размещено в газете «Архангельск - город воинской славы» и на информационном стенде, расположенном по адресу: г.Архангельск, пл.Ленина, д.5, кабинет 423.

5. Уполномоченный орган местного самоуправления, осуществляющий выявление лиц, земельный участок которых подлежит изъятию для муниципальных нужд – Администрация МО «Город Архангельск» в лице департамента муниципального имущества Администрации МО «Город Архангельск».

Уважаемый пользователь, данный сайт производит обработку файлов cookie и пользовательских данных (информацию об ip-адресе, местоположении, типе и версии операционной системы, типе и версии браузера, источнике переадресации на сайт, и сведения об открытых страницах пользователя) в целях улучшения функционирования сайта и проведения статистических исследований.
Продолжая использовать сайт, вы даете согласие на сбор и обработку указанной информации (Статья 6 Федерального закона от 27.07.2006 № 152-ФЗ "Закон о персональных данных").