1. Цель изъятия земельного участка для муниципальных нужд – изъятие земельного участка в связи с признанием многоквартирного жилого дома № 31 по ул. Красных Партизан в г. Архангельске аварийным и подлежащим сносу.
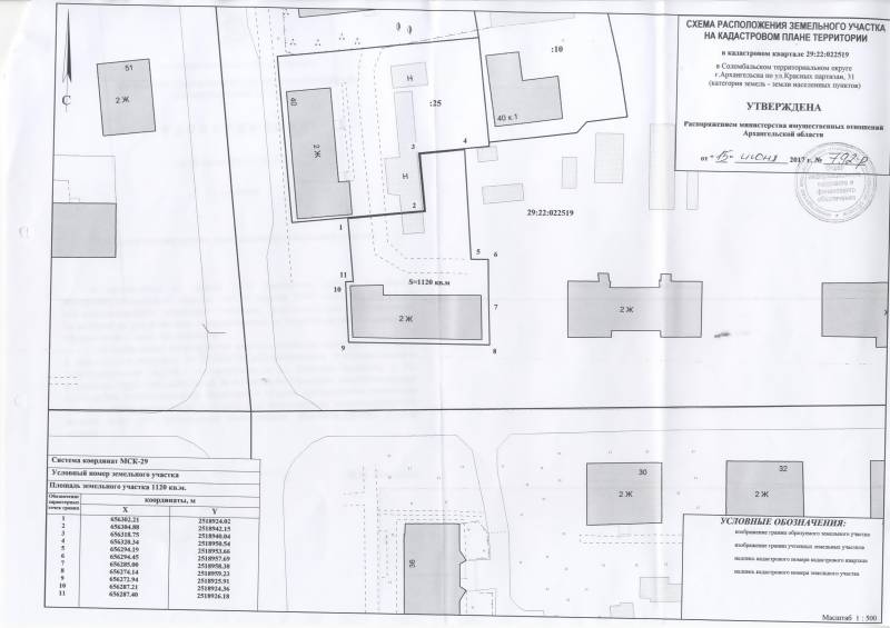
2. Адрес месторасположения земельного участка: г. Архангельск, ул. Красных Партизан, д. 31. Данный земельный участок расположен в кадастровом квартале 29:22:022519. Утвержденная схема расположения земельного участка:

На данном земельном участке расположены следующие объекты недвижимости:
- ул. Красных Партизан, д. 31, кв. 1, кадастровый номер 29:22:022519:108;
- ул. Красных Партизан, д. 31, кв. 4, кадастровый номер 29:22:022519:114;
- ул. Красных Партизан, д. 31, кв. 5, кадастровый номер 29:22:022519:110;
- ул. Красных Партизан, д. 31, кв. 6, кадастровый номер 29:22:022519:111;
- ул. Красных Партизан, д. 31, кв. 7, кадастровый номер 29:22:022519:115;
- ул. Красных Партизан, д. 31, кв. 9, кадастровый номер 29:22:022519:112.
3. Получить информацию о предполагаемом изъятии земельного участка, указанного в п. 1 настоящего сообщения, и расположенных на нем объектов недвижимого имущества для муниципальных нужд, а также подать заявления об учете прав на земельный участок и иные объекты недвижимого имущества, заинтересованные лица могут по адресу: г. Архангельск, пл. В.И. Ленина, д. 5, каб. 518а, тел. (8182) 607-468. Заявление на подачу информации может быть подано заинтересованными лицами в течение 60 дней с момента опубликования настоящего сообщения.
4. Официальный сайт Администрации муниципального образования "Город Архангельск", где размещено настоящее сообщение - www.arhcity.ru. Также настоящее сообщение размещено на информационном стенде, расположенном по адресу: г. Архангельск, пл. В.И. Ленина, д. 5, каб. 423, и в газете "Архангельск - город воинской славы".
5. Уполномоченный орган местного самоуправления, осуществляющий выявление лиц, земельный участок которых подлежит изъятию для муниципальных нужд – Администрация муниципального образования "Город Архангельск" в лице департамента муниципального имущества Администрации муниципального образования "Город Архангельск".