Обычный режим просмотра
Навигация по разделу

Изъятие земельных участков для муниципальных нужд
Сообщение о планируемом изъятии земельного участка для муниципальных нужд по адресу: г. Архангельск, ул. Железнодорожная, д. 18

Сообщение о планируемом изъятии земельного участка для муниципальных нужд по адресу: г. Архангельск, ул. Железнодорожная, д. 18

1. Цель изъятия земельного участка для муниципальных нужд – изъятие земельного участка в связи с признанием многоквартирного жилого дома по ул. Железнодорожной, д. 18 аварийным и подлежащим сносу.
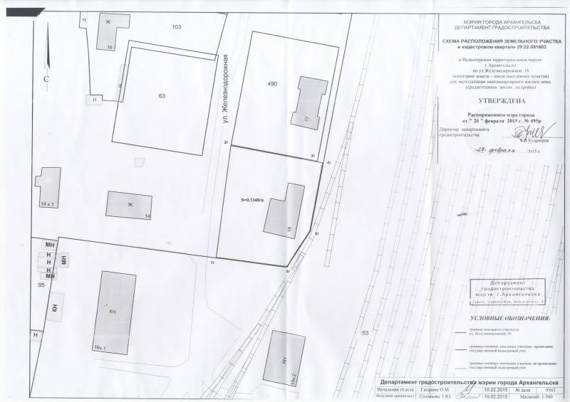
2. Адрес месторасположения земельного участка: г. Архангельск, ул. Железнодорожная, д. 18. Данный земельный участок расположен в кадастровом квартале 29:22:081603. Утвержденная схема расположения земельного участка:На данном земельном участке расположены следующие объекты недвижимости:
- ул. Железнодорожная, д. 18, квартира № 1, кадастровый номер 29:22:081603:246;
- ул. Железнодорожная, д. 18, квартира № 4, кадастровый номер 29:22:081603:249.
3. Получить информацию о предполагаемом изъятии земельного участка, указанного в п. 1 настоящего сообщения, и расположенных на нем объектов недвижимого имущества для муниципальных нужд, а также подать заявления об учете прав на земельный участок и иные объекты недвижимого имущества, заинтересованные лица могут по адресу: г. Архангельск, пл. В.И. Ленина, д. 5, каб. 518а, тел. 607-468. Заявление на подачу информации может быть подано заинтересованными лицами в течение 60 дней с момента опубликования настоящего сообщения.
4. Официальный сайт Администрации МО "Город Архангельск", где размещено настоящее сообщение - www.arhcity.ru. Также настоящее сообщение размещено на информационном стенде, расположенном по адресу: г. Архангельск, пл. В.И. Ленина, д. 5, каб. 423, и в газете "Архангельск - город воинской славы".
5. Уполномоченный орган местного самоуправления, осуществляющий выявление лиц, земельный участок которых подлежит изъятию для муниципальных нужд – Администрация МО "Город Архангельск" в лице департамента муниципального имущества Администрации МО "Город Архангельск".

Уважаемый пользователь, данный сайт производит обработку файлов cookie и пользовательских данных (информацию об ip-адресе, местоположении, типе и версии операционной системы, типе и версии браузера, источнике переадресации на сайт, и сведения об открытых страницах пользователя) в целях улучшения функционирования сайта и проведения статистических исследований.
Продолжая использовать сайт, вы даете согласие на сбор и обработку указанной информации (Статья 6 Федерального закона от 27.07.2006 № 152-ФЗ "Закон о персональных данных").