Из-за ремонта на теплотрассе будет ограничено движение на участке пр. Обводный канал
5 июля 2019 г. пятница, 17:15:15
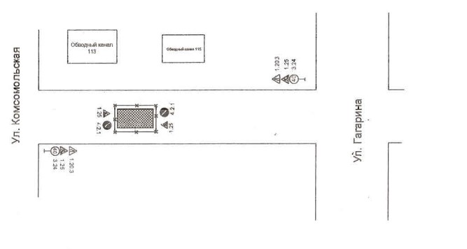
В понедельник, 8 июля, ПАО «ТГК-2» будет проводить ремонтные работы на теплотрассе. Это, в свою очередь, потребует временного ограничения движения транспортных средств.
Так, с 00.00 до 6.00 будет полностью перекрыто движение транспорта по пр. Обводный канал в районе дома № 115. А с 6.00 8 июля до 6.00 11 июля движение транспорта на данном участке ограничат частично – будут перекрыты 2 полосы движения автотранспорта.
Скоро что то будет...
Оцените полезность информации:
Дата публикации документа: 05.07.2019 17:15:15
Последнее изменение: 05.07.2019 16:17:36
Последнее изменение: 05.07.2019 16:17:36


















































